Poslední luxusní mezonetový byt v srdci Karlína
mezonet novostavba 4+kk
Sokolovská, Karlín, Praha 8
Bezesporu stylové a výjimečné. Stejně, jako budou jejich noví majitelé! To jsou dva mezonety v 5. a 6. patře novorenesančního činžovního domu. Novotou a dřevem vonící mezonetové byty vznikly v nástavbě tohoto domu v lokalitě žádaného Karlína. V tomto stavebním stylu, z dob generace Národního divadla, byla postavena např. Prašná brána, Národní divadlo či Rudolfinum.
Spoustu fotografií interiéru bytů a vizualizací si můžete
prohlédnout i v horizontální fotogalerii šipkami
doprava/doleva.
Jednotlivé nabídky každého bytu i s cenami naleznete dole v prezentaci
kliknutím na „detail“.
Poloha
Na rohu ulic Sokolovská 454/126 a Urxova v těsné blízkosti rozsáhlé zeleně vám v domě po citlivé a detailní rekonstrukci, se zachováním prvků italské renesance, nabízíme v 5. a 6. patře dvě bytové jednotky:
Byt č. 2)
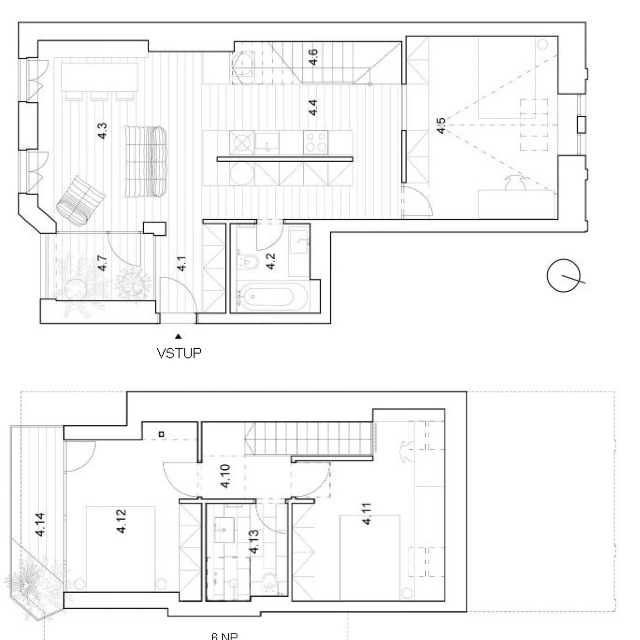
4+kk o čisté podlahové ploše 130,9 m² se dvěma koupelnami a
výjimečně velkým sklepem 14,3 m² a



Byt č. 4)
4+kk o čisté podlahové ploše 102,4 m² s terasou 5,2 m², lodžií 4 m², dvěma koupelnami a sklepem 5,6 m².



Vstupní dveře do domu otevřete pomocí čipu.
Ke vstupním dveřím bytu vás vyveze zcela nový a neskutečně tichý
prosklený výtah uprostřed domu, s nosností až 7 osob.
Bytové jednotky jsou umístěny naproti sobě přes chodbu.
Kontejnery na tříděný odpad jsou umístěny venku ve vnitrobloku. Výhodou
je čistota v domě, kde není zápach.
Fasáda vnitrobloku je po rekonstrukci. Fasádu na opačné straně čeká
v brzké době již odsouhlasená rekonstrukce.
Zděné místnosti odvětrávaných sklepů jsou umístěny v suterénu domu.

Orientace bytu
Nadstandardní energeticky velmi úsporné bydlení v energetické třídě „B“ je orientováno téměř do všech světových stran. Byt č. 2) na SZ do ulice Sokolovská a SV do ulice Urxova se vzrostlou zelení.
Byt č. 4) na SZ do ulice a JV do velmi klidného vnitrobloku, kam směřuje jak terasa, tak i lodžie.

Výhledy si lze vychutnat z klasických oken. Hra se světlem a průhledy je
zde maximální i díky střešním oknům „Roto“ či velkoformátovým
ateliérovým oknům.

Výhody a originalita
Jedinečnost bytů tkví také v použitých materiálech s nádechem dánského designu. Ve variabilitě využití místností. V možnosti dělení prostor novými příčkami dle vlastních potřeb.Tam, kde je nyní pracovna, může být ložnice či dětský pokoj.
Každé podlaží má svou koupelnu. Patra vždy spojuje bezpečné ocelové masivním dřevem obložené schodiště. Např. pokoj v 6.patře bytu č. 2) je ozvláštněn dvěma prosklenými stěnami. Další místnost je zajímavá propojením s koupelnou.
V bytě č. 4) je důmyslné usazení lodžie, která je přitomna jak na chodbě bytu, tak v obývacím pokoji. V patře pak byt nabízí terasu. Byt je velmi tichý. Opomenout proto nelze ani měření hluku, které vyšlo ve velmi nízkých hodnotách !

Prosklení mezi kuchyní a dětským pokojem je velmi praktické, překvapí také různé niky v ložnici, kde byste je ani nečekali. Dveře v celém bytě mají skryté zárubně.
Dotvoření dle vlastních preferencí
Řešení interiéru, kuchyně a dispozic v celém 5. patře si může klient navrhnout dle vlastních preferencí! A platí to u obou jednotek. Dopracování interiérů s vámi prodávající společně s architektem rád dokončí, což vnímáme jako velkou devizu.
Standardy
Vybavení a standardy Vám rádi dodáme na vyžádání. Např. podlahy
v obytných místnostech jsou kryty třívrstvými dřevěnými parketami a
bezespárými kaučukovými podlahami. 
V domě bylo myšleno na detail. Vše je sladěno do teplých tónů, nad
každými vstpuními dveřmi svíti tlumená bodovka. 
Podlahy a stěny jsou v koupelnách obloženy travertinem-kamenem, ze kterého je postaveno např. italské Koloseum. Na podlahách je voděodolné lité terrazzo, výhodou je velmi snadná údržba a bezesparost.

Pozornosti neunikne stylové betonové umyvadlo nebo stropní okno přímo nad vaší hlavou ve sprchovém koutě.

Vytápění podlahové, prostřednictvím vlastního plynového kondenzačního kotle, ve všech místnostech zvlášť regulovatelné. Mulstisplitová klimatizace je samozřejmostí v každé obytné místnosti. Okna jsou v kombinaci dřevěná a hliníková s izolačním trojsklem a střešní okna Roto. Výška stropů v obytných místnostech činí 260 až 415 cm. V koupelnách jsou sníženy sádrokartonovými podhledy.

Parkování
Parkovat lze u domu nebo 2 minuty chůze v garážích office budovy přes ulici – za úplatu.
Financování
Prodávající nabízí možnost flexibilní úhrady části kupní ceny. Financovat lze i hypotečním úvěrem. Více na osobní schůzce.
Lokalita
Dům je zasazen do lokality společenského a kulturního Karlína, který se stal jednou z nejmodernějších čtvrtí v Praze. Prolíná se zde historie a moderní architektura. Jsou zde vyhledávané kavárny, cukrárny a pekárny. Také business centra za účelem obchodních schůzek.

Lidé zde rádi odpočívají v rozlehlých parcích jako jsou Kaizlovy sady (1,6 ha) s jezírkem a dětským hřištěm u známé Invalidovny.

či Lyčkovo náměstí s nesčetně lavičkami před nejkrásnější základní školou v ČR.

V lokalitě je mnoho dalších základních a mateřských škol. Vše je v bezprostřední blízkosti domu.

Pejskařům udělá radost perfektní psí hřiště 3 minuty od domu.

Dopravní dostupnost
je dokonalá. Přímo před domem se nachází zastávka tramvaje Urxova, pěšky se dostanete za 8 minut na metro B Křižíkova. V historickém centru Prahy se busem či tramvají octnete za 15 minut.

Prohlídky
Přijďte se podívat na obě nemovitosti. Přijďte koupit.
Prohlídku Vám umožníme kdykoli. Doporučujeme však za denního světla.
Cenu naleznete níže, kde je každý byt prezentovaný samostatně.
Těším se na vás.
Makléřka Lenka.
+420 777 630 138

Bezesporu stylové a výjimečné. Stejně, jako budou jejich noví majitelé! To jsou dva mezonety v 5. a 6. patře novorenesančního činžovního domu. Novotou a dřevem vonící mezonetové byty vznikly v nástavbě tohoto domu v lokalitě žádaného Karlína. V tomto stavebním stylu, z dob generace Národního divadla, byla postavena např. Prašná brána, Národní divadlo či Rudolfinum.
Spoustu fotografií interiéru bytů a vizualizací si můžete
prohlédnout i v horizontální fotogalerii šipkami
doprava/doleva.
Jednotlivé nabídky každého bytu i s cenami naleznete dole v prezentaci
kliknutím na „detail“.
Poloha
Na rohu ulic Sokolovská 454/126 a Urxova v těsné blízkosti rozsáhlé zeleně vám v domě po citlivé a detailní rekonstrukci, se zachováním prvků italské renesance, nabízíme v 5. a 6. patře dvě bytové jednotky:
Byt č. 2)
4+kk o čisté podlahové ploše 130,9 m² se dvěma koupelnami a
výjimečně velkým sklepem 14,3 m² a



Byt č. 4)
4+kk o čisté podlahové ploše 102,4 m² s terasou 5,2 m², lodžií 4 m², dvěma koupelnami a sklepem 5,6 m².



Vstupní dveře do domu otevřete pomocí čipu.
Ke vstupním dveřím bytu vás vyveze zcela nový a neskutečně tichý
prosklený výtah uprostřed domu, s nosností až 7 osob.
Bytové jednotky jsou umístěny naproti sobě přes chodbu.
Kontejnery na tříděný odpad jsou umístěny venku ve vnitrobloku. Výhodou
je čistota v domě, kde není zápach.
Fasáda vnitrobloku je po rekonstrukci. Fasádu na opačné straně čeká
v brzké době již odsouhlasená rekonstrukce.
Zděné místnosti odvětrávaných sklepů jsou umístěny v suterénu domu.

Orientace bytu
Nadstandardní energeticky velmi úsporné bydlení v energetické třídě „B“ je orientováno téměř do všech světových stran. Byt č. 2) na SZ do ulice Sokolovská a SV do ulice Urxova se vzrostlou zelení.
Byt č. 4) na SZ do ulice a JV do velmi klidného vnitrobloku, kam směřuje jak terasa, tak i lodžie.

Výhledy si lze vychutnat z klasických oken. Hra se světlem a průhledy je
zde maximální i díky střešním oknům „Roto“ či velkoformátovým
ateliérovým oknům.

Výhody a originalita
Jedinečnost bytů tkví také v použitých materiálech s nádechem dánského designu. Ve variabilitě využití místností. V možnosti dělení prostor novými příčkami dle vlastních potřeb.Tam, kde je nyní pracovna, může být ložnice či dětský pokoj.
Každé podlaží má svou koupelnu. Patra vždy spojuje bezpečné ocelové masivním dřevem obložené schodiště. Např. pokoj v 6.patře bytu č. 2) je ozvláštněn dvěma prosklenými stěnami. Další místnost je zajímavá propojením s koupelnou.
V bytě č. 4) je důmyslné usazení lodžie, která je přitomna jak na chodbě bytu, tak v obývacím pokoji. V patře pak byt nabízí terasu. Byt je velmi tichý. Opomenout proto nelze ani měření hluku, které vyšlo ve velmi nízkých hodnotách !

Prosklení mezi kuchyní a dětským pokojem je velmi praktické, překvapí také různé niky v ložnici, kde byste je ani nečekali. Dveře v celém bytě mají skryté zárubně.
Dotvoření dle vlastních preferencí
Řešení interiéru, kuchyně a dispozic v celém 5. patře si může klient navrhnout dle vlastních preferencí! A platí to u obou jednotek. Dopracování interiérů s vámi prodávající společně s architektem rád dokončí, což vnímáme jako velkou devizu.
Standardy
Vybavení a standardy Vám rádi dodáme na vyžádání. Např. podlahy
v obytných místnostech jsou kryty třívrstvými dřevěnými parketami a
bezespárými kaučukovými podlahami. 
V domě bylo myšleno na detail. Vše je sladěno do teplých tónů, nad
každými vstpuními dveřmi svíti tlumená bodovka. 
Podlahy a stěny jsou v koupelnách obloženy travertinem-kamenem, ze kterého je postaveno např. italské Koloseum. Na podlahách je voděodolné lité terrazzo, výhodou je velmi snadná údržba a bezesparost.

Pozornosti neunikne stylové betonové umyvadlo nebo stropní okno přímo nad vaší hlavou ve sprchovém koutě.

Vytápění podlahové, prostřednictvím vlastního plynového kondenzačního kotle, ve všech místnostech zvlášť regulovatelné. Mulstisplitová klimatizace je samozřejmostí v každé obytné místnosti. Okna jsou v kombinaci dřevěná a hliníková s izolačním trojsklem a střešní okna Roto. Výška stropů v obytných místnostech činí 260 až 415 cm. V koupelnách jsou sníženy sádrokartonovými podhledy.

Parkování
Parkovat lze u domu nebo 2 minuty chůze v garážích office budovy přes ulici – za úplatu.
Financování
Prodávající nabízí možnost flexibilní úhrady části kupní ceny. Financovat lze i hypotečním úvěrem. Více na osobní schůzce.
Lokalita
Dům je zasazen do lokality společenského a kulturního Karlína, který se stal jednou z nejmodernějších čtvrtí v Praze. Prolíná se zde historie a moderní architektura. Jsou zde vyhledávané kavárny, cukrárny a pekárny. Také business centra za účelem obchodních schůzek.

Lidé zde rádi odpočívají v rozlehlých parcích jako jsou Kaizlovy sady (1,6 ha) s jezírkem a dětským hřištěm u známé Invalidovny.

či Lyčkovo náměstí s nesčetně lavičkami před nejkrásnější základní školou v ČR.

V lokalitě je mnoho dalších základních a mateřských škol. Vše je v bezprostřední blízkosti domu.

Pejskařům udělá radost perfektní psí hřiště 3 minuty od domu.

Dopravní dostupnost
je dokonalá. Přímo před domem se nachází zastávka tramvaje Urxova, pěšky se dostanete za 8 minut na metro B Křižíkova. V historickém centru Prahy se busem či tramvají octnete za 15 minut.

Prohlídky
Přijďte se podívat na obě nemovitosti. Přijďte koupit.
Prohlídku Vám umožníme kdykoli. Doporučujeme však za denního světla.
Cenu naleznete níže, kde je každý byt prezentovaný samostatně.
Těším se na vás.
Makléřka Lenka.
+420 777 630 138


















































