Výjimečný luxusní byt v srdci Karlína. Se základy věže v interiéru
Sokolovská, Karlín, Praha 8 zrušeno
| Cena | na vyžádání zrušeno |
| Info k ceně | včetně provize, včetně právního servisu |
| Adresa | Sokolovská Karlín, Praha 8 |
| ID nabídky | groo1473 |
| Budova |
cihlová |
| Stav objektu |
po rekonstrukci |
| Plocha užitná |
145,2 vč. nadstandard. sklepa m² |
| Plocha podlahová |
130,9 m² |
| Nízkoenergetický |
ano |
| Vybavení |
ne |
| Umístění objektu |
centrum obce |
| Vlastnictví |
osobní |
| Sklep |
ano |
| Plocha sklepu |
14,3 m² |
| Podlaží |
mezonet 5. a 6. |
| Počet podlaží budovy |
6 |
| Výtah |
ano |
| Rok výstavby |
2022 kolaudace |
| Datum nastěhování |
ihned |
| Topení |
lokální plynové |
| Voda |
dálkový vodovod |
| Odpad |
veřejná kanalizace |
| Možnost parkování |
ano |
| Míst k parkování |
office budova naproti domu |
| Bezbariérový přístup |
ne |
| Třída en. náročnosti |
B |
| En. náročnost |
114,0 kWh/m^2 za rok, podle vyhlášky č. 78/2013 Sb. kWh/m²/rok |
▪V tomto krásném domě nabízíme byty dva. Prohlédnout si můžete
oba.
▪Bohatá fotogalerie (78 obrázků) interiéru si vizualizacemi, detailů
i exteriéru, včetně okolí a parků u domu
▪Vyžádejte si seznam použitých materiálů – rádi zašleme
Bezesporu stylový a výjimečný. Stejně, jako bude i jeho nový majitel!
To je rohový mezonet, v jehož nejen obýváku dominuje konstrukce nádherné
věže, která zdobí průčelí novorenesančního činžovního domu. A to se
jen tak nevidí.
Novotou a dřevem vonící mezonetový byt vznikl v nástavbě tohoto domu
v lokalitě žádaného Karlína. V tomto stavebním stylu, z dob generace
Národního divadla, byla postavena např. Prašná brána, Národní divadlo
či Rudolfinum.
Poloha
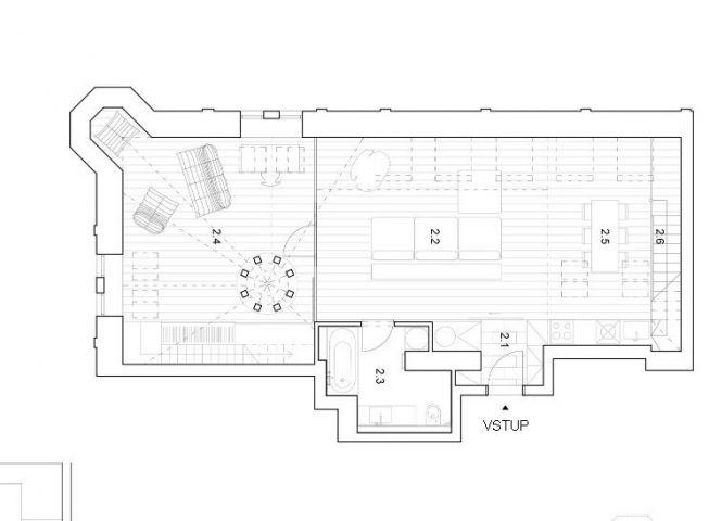
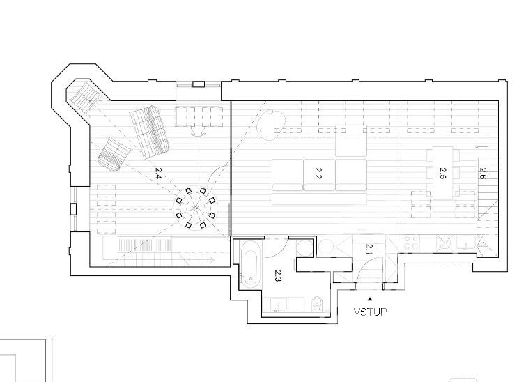
Na rohu ulic Sokolovská 454/126 a Urxova v těsné blízkosti rozsáhlé zeleně vám v domě po citlivé a detailní rekonstrukci, se zachováním prvků italské renesance, nabízíme v 5. a 6. patře bytovou jednotku 4+kk, o čisté podlahové ploše 130,9 m² se dvěma koupelnami a výjimečně velkým sklepem 14,3 m². Ke vstupním dveřím bytu vás vyveze zcela nový a neskutečně tichý prosklený výtah uprostřed domu, s nosností až 7 osob. Kolaudace 10/2022
Orientace bytu
Nadstandardní energeticky velmi úsporné bydlení je orientováno na SZ do ulice Sokolovská a SV do ulice Urxova se vzrostlou zelení. Výhledy si lze vychutnat i ze dvou klasických oken směřovaných do obou směrů. Hra se světlem a průhledy je zde maximální i díky střešním oknům Roto.
Výhody a originalita
Jedinečnost bytu tkví také v použitých materiálech s nádechem dánského designu. Ve variabilitě využití místností. V možnosti dělení prostor příčkami dle vlastních potřeb. Pracovnu na vizualizacích může nahradit např. dětský pokoj, se kterým bylo v tomto prostoru i počítáno.
Každé podlaží má svou koupelnu. Patra spojuje bezpečné ocelové masivním dřevem obložené schodiště. Např. pokoj v 6.patře je ozvláštněn dvěma prosklenými stěnami. Ložnice je zajímavá propojením s koupelnou a šatnou. Dveře v celém bytě mají skryté zárubně.
Dotvoření dle vlastních preferencí
Řešení interiéru, kuchyně a dispozic v celém 5. patře si může klient navrhnout dle vlastních preferencí! Dopracování interiérů s vámi prodávající společně s architektem rád dokončí, což vnímáme jako velkou devizu. Samotná velká plocha v 5.patře má cca 77 m², naskýtá se zde možnost rozdělení příčkami, dle návrhů v plánku ve fotogalerii.
Standardy
Vybavení a standardy Vám rádi dodáme na vyžádání. Např. podlahy v obytných místnostech jsou kryty třívrstvými dřevěnými parketami a bezespárými kaučukovými podlahami. Podlahy a stěny jsou v koupelnách obloženy travertinem-kamenem, ze kterého je postaveno např. italské Koloseum. Na podlahách je voděodolné lité terrazzo, výhodou je velmi snadná údržba a bezesparost. Pozornosti neunikne stylové betonové umyvadlo. Vytápění podlahové, prostřednictvím vlastního plynového kondenzačního kotle, ve všech místnostech zvlášť regulovatelné. Mulstisplitová klimatizace je samozřejmostí v každé obytné místnosti. Okna jsou v kombinaci dřevěná a hliníková s izolačním trojsklem a střešní okna Roto. Výška stropů v obytných místnostech činí 260 až 415 cm. V koupelnách jsou sníženy sádrokartonovými podhledy. Internet – optický kabel.
Parkování, úhrada
Parkovat lze u domu nebo 2 minuty chůze v garážích office budovy přes ulici – za úplatu. Prodávající nabízí možnost flexibilní úhrady části kupní ceny.
Lokalita
Dům je zasazen do lokality společenského a kulturního Karlína, který se stal jednou z nejmodernějších čtvrtí v Praze. Prolíná se zde historie a moderní architektura. Jsou zde vyhledávané kavárny, cukrárny a pekárny. Také business centra za účelem obchodních schůzek. Lidé zde rádi odpočívají v rozlehlých parcích jako jsou Kaizlovy sady (1,6 ha) s jezírkem a dětským hřištěm u známé Invalidovny či Lyčkovo náměstí s nesčetně lavičkami před nejkrásnější základní školou v ČR. V lokalitě je mnoho dalších základních a mateřských škol. Pejskařům udělá radost perfektní psí hřiště 3 minuty od domu.
Dopravní dostupnost
je dokonalá. Přímo před domem se nachází zastávka tram Urxova, pěšky se dostanete za 8 minut na metro B Křižíkova. V historickém centru Prahy se busem či tramvají octnete za 15 minut.
Prohlídky
Přijďte se podívat. Přijďte koupit. Prohlídku Vám umožníme kdykoli.













































































