Pronájem prodejny pro přípravu studené kuchyně s odkupem potřebného vybavení
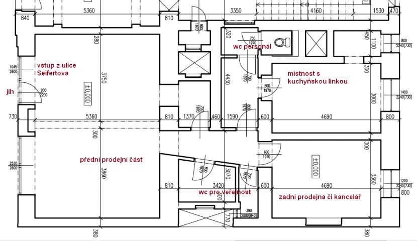
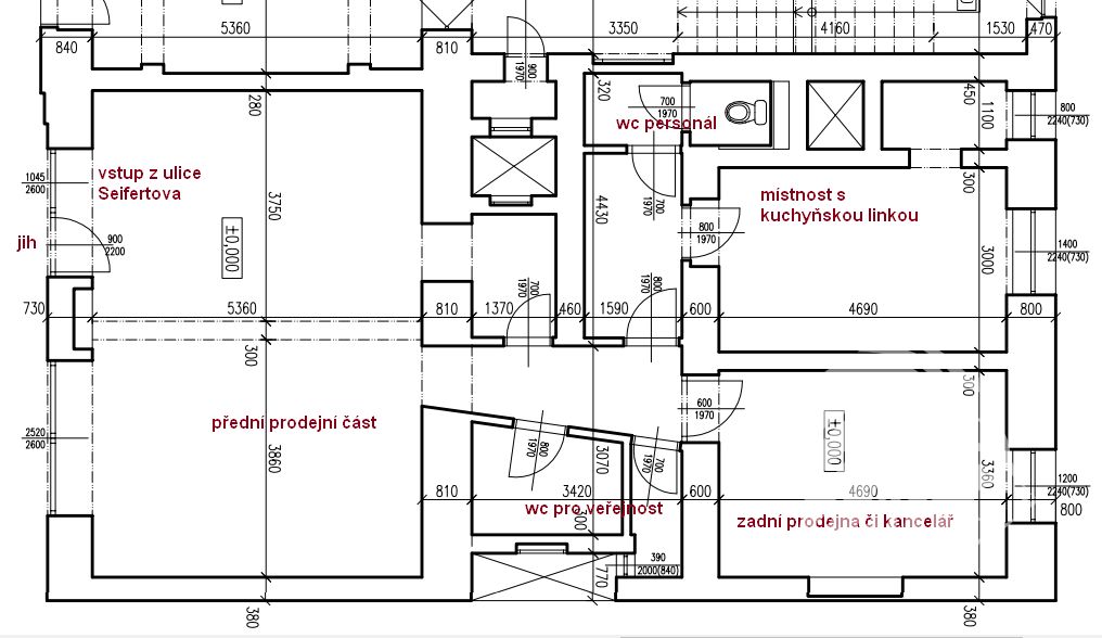
Seifertova, Žižkov, Praha 3 zrušeno Tři místnosti se zázemím. Sklad. Výrobna. Kancelář. Výlevka 2 x WC.
| Cena | na vyžádání zrušeno |
| Info k ceně | včetně právního servisu |
| Adresa | Seifertova Žižkov, Praha 3 |
| ID nabídky | groo1491 |
| Budova |
cihlová |
| Stav objektu |
velmi dobrý |
| Plocha užitná |
98,75 m² |
| Vybavení |
ne |
| Typ domu |
patrový |
| Poloha objektu |
řadový |
| Umístění objektu |
rušná část obce |
| Podlaží |
1. |
| Rok rekonstrukce |
2022 |
| Datum nastěhování |
ihned |
| Třída en. náročnosti |
G |
Nevyžadujeme provizi ani vratnou jistotu ! Odkup vybavení podmínkou.
Dohoda se stávajícím nájemcem.
Prohlídka možná kdykoli za splnění podmínky ochoty jednat o vybavení
prostor.
Nabízíme v roce 2022 zrekonstruované nebytové prostory o celkové výměře 98,75 m². Kolaudované jako prodejna-lahůdky. V prostorách lze vybudovat až 10 míst k sezení(s ohledem na požadavky hygieny a počet vybudovaných WC). Prodejna se nachází v dolní části naproti Domu radosti (dříve Dům odborových svazů).
Využití
Vhodné především pro vlastní výrobu a prodej lahůdek, studené
kuchyně a jiných podobných provozů s možností zázemí pro personál nebo
vlastní zadní kanceláří.
Naopak nevhodné pro gastro provoz s vlastní teplou kuchyní s nutností
vzduchotechniky. Teplá jídla lze prodávat, ale dovezená.
Členění
Hlavní prodejní část je orientována do ulice Seifertova na jižní
stranu. Navazuje na zadní část se dvěma místnostmi na sever a
příslušenstvím, kde je možné jednu z místností využít také jako
prodejní.
Zadní část umožňuje spoustu možností využití. Dvakrát x WC
(zaměstnanci, zákazníci). Výlevka, místnost s kuchyňskou linkou,
sklad, atd…
Rekonstrukce a vybavení
Nová fasáda z r. 2007 vč. hliníkové výlohy s možností větrání
vyklápěcích horních dílů, další úpravy proběhly v r. 2015. Přední
WC, rozvody elektřiny a odpady vč. podlahových krytin vybudovány v r.
2022.
Podlahy: dlažba v dekoru dřeva, vyjma v místnosti s kuch linkou a chodeb,
kde je PVC. Zadní 3 okna opatřena mřížemi. Osvětlení odpovídá
kolaudované prodejně lahůdek. Každá místnost má svou klima jednotku na
samostatné dálkové ovládání. Propojovací chodby se stropními podhledy
s odvětráváním do světlíku. Vlastní plynové topení – kotlem
Vaillant. Teplá voda zajištěna malými bojlery všude tam, kde je možné
pustit vodu. Rozvody na PCO.
Je možné využít reklamní desku nad výlohou + reklamní výstrč.
Chodník je obecní, umístění áčka a jiných předmětů je nutné vyjednat
s městskou částí.
Parkovat lze před prodejnou krátkodobě pro potřeby vykládky a nakládky
zboží.
Odpad kontejnery umístěny ve dvoře. V případě vlastního speciálního
odpadu je třeba jej ponechat v prostorách.
Potenciál adresy
Seifertova ulice představuje jednu z nejvýznamnějších ulic Žižkova a
zároveň důležitou dopravní osu mezi Žižkovem a centrem města. Ulice
projde v budoucnu kompletní revitalizací. Rekonstrukce je plánována
v celkovém rozsahu od Olšanského náměstí po křižovatku U Bulhara,
resp. po hlavní nádraží.
Pro prostory to znamená příliv klientely nejen díky velmi atraktivnímu
prostředí, ale také díky přisunutí tramvajové zastávky, která by měla
lépe navazovat na přestup na BUS 135 v Italské ulici.
A co se má na Seifertově ulici stát?
Rekonstrukce veřejného prostranství ulice.
Rekonstrukce tělesa tramvajové trati.
Zpřehlednění ulice s důrazem na vyšší bezpečnost chodců.
Zkvalitnění veřejných prostranství v návaznosti na přesun dvou zastávek
tramvaje.
Nová řešení odtokových poměrů dešťových srážek s minimalizací
škodlivých dopadů na Seifertovu ulici.
Navržení systému nakládání s dešťovou vodou v ulici tak, aby došlo
k jejímu ochlazení a využití k zálivce okrasné vegetace, a tím
k úlevě značně zatížené kanalizační sítě.
Nová řešení pro park Winstona Churchilla s důrazem na pobytový charakter
území.
Zdůraznění významu důležité městské promenády s plánovanou podporou
místních služeb a provozoven.
Energetický štítek zatím nebyl dodán, proto uvádíme třídu G.


















































