3+kk v novostavbě s dvojí terasou. Milovníci úložných prostor si přijdou na své. Samozřejmostí je sklep a garážové stání
Kolbenova, Vysočany, Praha 9 pronajato 3+kk pronájem ulice Smržových
| Cena | na vyžádání pronajato |
| Info k ceně | včetně právního servisu |
| Adresa | Kolbenova Vysočany, Praha 9 |
| ID nabídky | groo1480 |
| Budova |
cihlová |
| Stav objektu |
novostavba |
| Plocha užitná |
99 (byt, terasa, sklep) m² |
| Plocha podlahová |
80,10 (byt) m² |
| Nízkoenergetický |
ano |
| Vybavení |
ne |
| Umístění objektu |
klidná část obce |
| Vlastnictví |
osobní |
| Garáž |
ano |
| Počet parkovacích míst |
1 |
| Sklep |
ano |
| Plocha sklepu |
2 m² |
| Terasa |
ano |
| Plocha terasy |
16,9 m² |
| Podlaží |
6. |
| Výtah |
ano |
| Datum nastěhování |
ihned |
| Topení |
ústřední dálkové |
| Voda |
dálkový vodovod |
| Odpad |
veřejná kanalizace |
| Třída en. náročnosti |
B |
Byt se nachází na ulici SMRŽOVÝCH naproti Möbelixu. Vzhledem k nově
vzniklé ulici neumí náš web ještě tuto ulici najít. Omluvte proto
orientační umístění na ulici Kolebenova.
*U GROO neplatíte provizi.
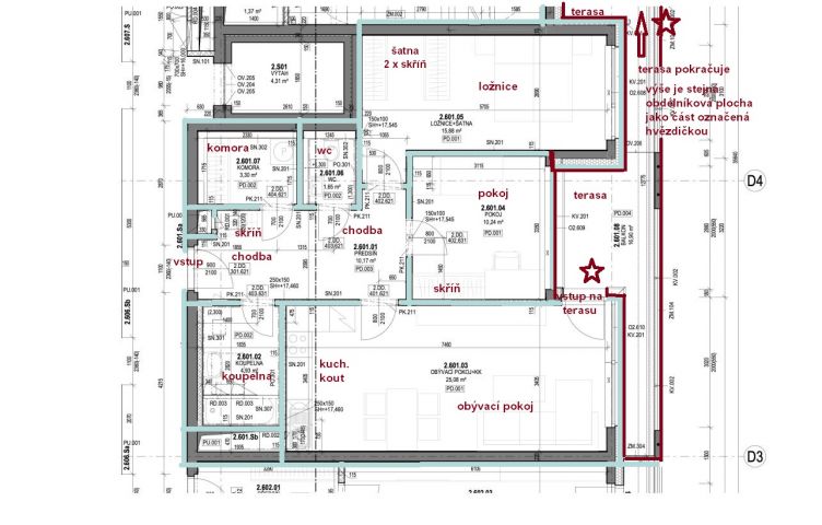
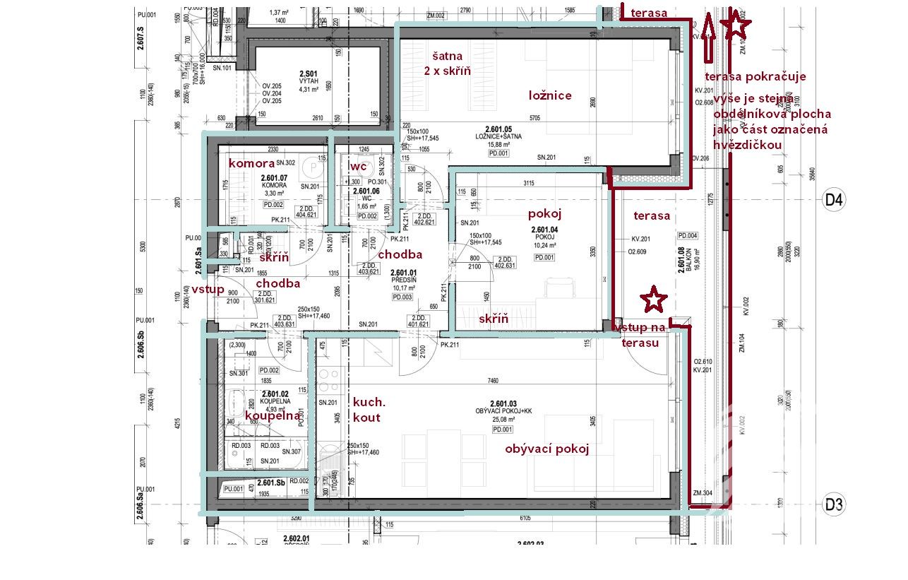
Preferujete byt, ve kterém ještě nikdo nebydlel? V tomto právě zkolaudovaném bytě se bude rodině s většími nároky na úložné prostory určitě líbit. Veškerý komfort je zde zaručen. Nadchne vás nejen dvojí terasa 16,90 m², důmyslná šatna v ložnici, regálová komora, čistý sklep, světlé garáže, ale i chytře vybudované odpočivadlo u výtahu, rozlehlé dětské hřiště či metro, které najdete hned za domem.
Byt 3+kk o výměře 80,10 m², určený k dlouhodobému pronájmu, se nachází v bytovém domě na ulici Smržových, v nově vzniklé čtvrti (projekt Vivus Kolbenova), v Praze 9 – Vysočany. Pár metrů od zastávky tramvaje či metra „B“ Kolbenova.
Říká se: „velká chodba (10,17m²) dělá velký byt“ a tady to rozhodně platí. Navíc byt má samostatné vstupy do každého pokoje (25,8 m² – obývák, 15,88 m² -ložnice a 10,24m² – pokojík). Díky velkým okenním tabulím a jižní orientaci je velmi světlý. Hospodyňky nadchne komora 3,30 m² s regály a pultem a prostorná koupelna 4,93 m², kde nebude pračka zabírat místo.
Terasa
Terasa 16,90 m² lemuje celý byt a nabízí 2 větší čtvercové části. Na plánku není jedna blíže k ložnici vidět. Vstup na ni z obývacího pokoje. Výhled z oken si tak lze zpříjemnit umístěním vlastní zeleně na terasu.
Poloha a orientace bytu
Byt 3+kk se nachází v 5. patře (6.NP) domu s výtahem. Všechna okna jsou orientována na jižní stranu. Pro lepší orientaci-čtvrť sousedí s Möbelixem.
Vybavení bytu
Foto odpovídá stavu a vybavení bytu.
Kuch. kout: kuchyňská linka, sklokeramická varná deska, el. pečicí trouba,
myčka 60 cm, digestoř, lednice s mrazákem. Přibyla jedna okrová dvířka
v pravé horní části kuchyně, která nejsou na fotografiích. Vše zcela
nové.
Skříně: na chodbě, zavěšená v koupelně, v ložnici dvoj skříň jako
šatna a v dětském pokoji.
Koupelna: vana, topný žebřík, zrcadlo, praktická zavěšená skříň.
Komora: přípojka na pračku, místo na sušičku, praktický pult,
policová stěna.
Technické vybavení
Podlahy: dřevěné olejované a dlažba. Komplet stropní svítidla. Topení dálkové – radiátory. Žaluzie na všech okenních tabulích. Přípojka na pračku je v komoře. Internet – optický kabel.
Parkování a sklep
Nájemce může v rámci ceny nájmu využívat vlastní parkovací stání v 1. PP domu 6,8 m² a plechovou sklepní kóji. Parkovací místo má skvělou polohu – u dveří k výtahu.
Dopravní dostupnost a vybavenost
Tram zastávka a metro „B“ Kolbenova je za domem. Do budoucna na ni zamíříte zkratkou, která vznikne po dostavbě čtvrti. Např. na Florenc metro B a C se dostanete za 11 minut. Do centra všeobecně do 15 minut. Občanská vybavenost je samozřejmostí lokality Prahy 9. Větší nákup můžete udělat v sousedním obchodním centru Fénix nebo na Harfě. Za zmínku stojí oblíbený park Podviní nebo park Zahrádky s říčkou Rokytkou a rybníkem, fitness loukou, dětským hřištěm bohatým na atrakce, stánek s občerstvením atd. Nechybí ani cyklostezka vedoucí až do centra města.
Požadavky na nájemce
Preferujeme nekuřáky bez domácích mazlíčků, kvůli dřevěným podlahám (děkujeme za pochopení). Uvítáme milovníky nového voňavého bydlení, kteří budou pečovat o byt jako o vlastní.






















































