Ojedinělá nabídka 3+kk s terasou, zahradou a parkováním široko daleko
Pod Zahrady, Přezletice pronajato 3+kk zahrada
| Cena | na vyžádání pronajato |
| Info k ceně | včetně právního servisu |
| Adresa | Pod Zahrady Přezletice |
| ID nabídky | groo1464 |
| Budova |
cihlová |
| Stav objektu |
novostavba |
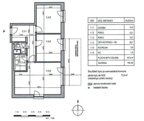
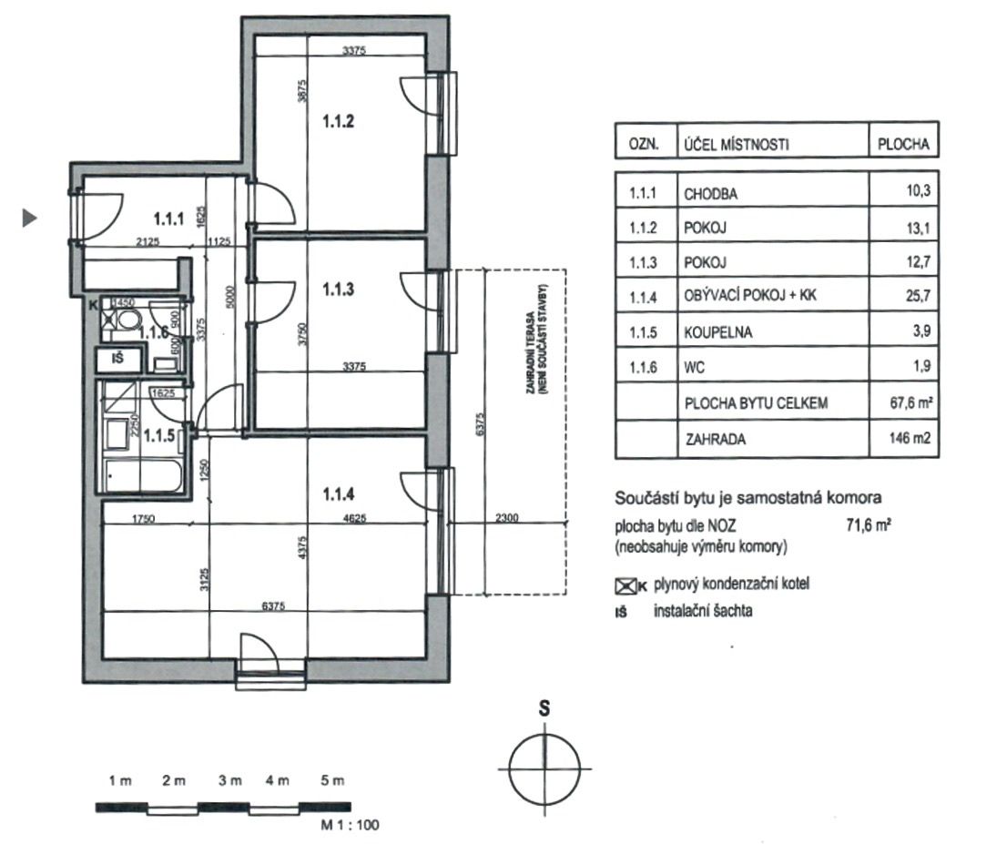
| Plocha užitná |
70,4 m² |
| Nízkoenergetický |
ano |
| Vybavení |
ne |
| Umístění objektu |
okraj obce |
| Vlastnictví |
osobní |
| Sklep |
ano |
| Terasa |
ano |
| Plocha zahrady |
184 m² |
| Rok výstavby |
2023 |
| Datum nastěhování |
1.5.2023 |
| Topení |
lokální plynové |
| Možnost parkování |
ano |
| Míst k parkování |
1 |
| Třída en. náročnosti |
B |
Prohlídky zahájeny: o velikonočním pondělí se přijdou podívat první zájemci. Na fotografiích ještě neuvidíte novou terasu a túje.
Takto perfektní nabídku nenajdete široko daleko. Díky velkolepé rozloze zahrady lemované tújemi, o výměře 184 m² s jižní terasou, stylové koupelně a podlahovému vytápění v novostavbě bytu 3+kk (70,4 m²) se tato nabídka stává naprosto výjimečnou a ojedinělou. Její součástí je venkovní parkovací stání před francouzskými okny bytu, zděný sklep ve společných prostorách domu.
To vše k pronájmu v právě zkolaudovaném developerském projektu s názvem „Zlatý kopec“ na ulici Pod Zahrady v Přezleticích. V přírodě, na samotné hranici Prahy – východ, v těsném sousedství pražské městské části Vinoř Praha 9, kde je další občanská vybavenost v docházkové vzdálenosti.
Poloha bytu
Byt 3+kk se nachází se v přízemí domu s bezbariérovým přístupem. U nově zbudovaného multifunkčního a dětského hřiště. Na zahradu je možné vstoupit i brankou a usnadnit si tak vykládku a nakládku věcí ze zahrady. Byt je rohový (roh tvoří obývací pokoj), tedy orientovaný na dvě světové strany.
Orientace bytu
Východ: všechny pokoje včetně části zahrady s brankou Jih: obývací pokoj a druhá část zahrady s větší částí terasy, s čistým výhledem do přírody s lemujícím Ctěnickým potokem
Vybavení bytu
Kuchyně: sklokeramická varná deska, digestoř, horkovzdušná trouba, myčka. Chodba: prostorná vestavěná skříň (vnitřní rozvržení skříně viz foto). Koupelna: velký sprchový kout s odkládací nikou uvnitř, skříňka pod umyvadlem a zrcadlo v rámu, topný plynový žebřík. WC: bidetová sprška, umyvadlo. Terasa a zahrada: probíhá výsadba tújí lemujících celou zahradu a výsev nové trávy. Pletivo bude pokryto černou stínící tkaninou pro větší pocit soukromí. Pokoje: ze všech pokojů se dostanete francouzským oknem na podélnou terasu a zahradu. Byt lze vybavit na náklady pronajímatele lednicí, pračkou.
Technické vybavení
Komfortní podlahové vytápění v podlaze, podlahová krytina-vinyl, v chodbě, koupelně a na WC dlažba. Plynový kondenzační kotel na ohřev vody umístěný na WC, přípojka na pračku a sušičku s max. šířkou 45 cm taktéž na WC. Domácí telefon, požární hlásič, bezpečnostní dveře. Na domě je umístěna TV anténa s možností připojení na Skylink satelit. Datové rozvody jsou ve všech místnostech.
Parkování a obč. vybavenost
Vlastní parkovací stání přímo před bytem a zahradou. V obci vznikl nový parkovací dům s možností nájmu dalšího parkování a 3 minuty pěšky vzdálené centrum se službami a potravinami (Žabka). V obci je školka a nově se otevírá základní škola se zahájením 2023/2024. V Přezleticích je také chovný revitalizovaný rybník.
Dopravní dostupnost
do obce se dostanete po silnici směrem od Brandýsa nad Labem-Staré Boleslavi, z Prahy-Vinoře, Prahy-Čakovic a z obce Veleň. MHD zastávka bus č. 302, 396 „U rybníka“ je vzdálená pouhé 4 minuty chůze od domu (260 m) se směrem na Letňany a Palmovku, nebo zastávka „Vinořská“ vzdálená cca 8 minut. Do centra Prahy a do okolních obcí je možné se dostat taktéž z Vinoře autobusy č. 375, 378 a dalšími. Autem se dostanete na metro C Letňany za 13 minut.
Hledáme nájemce – milovníka přírody, který se bude s láskou a
maximální péčí starat nejen o nový byt, ale i o zahradu a udržovat ji
čistou, bez shromažďování věcí.
Byt bude připraven k nastěhování cca květen 2023. Byt se zahradou vám
rádi ukážeme už nyní.





















































