Novostavba 2+kk s balkonem uprostřed přírody
Zborovská, Jince pronajato 2+kk
| Cena | na vyžádání pronajato |
| Info k ceně | včetně právního servisu |
| Adresa | Zborovská Jince |
| ID nabídky | groo1463 |
| Budova |
cihlová |
| Stav objektu |
novostavba |
| Plocha užitná |
56,62 (byt+balkon) m² |
| Plocha podlahová |
49,6 m² |
| Nízkoenergetický |
ano |
| Vybavení |
ne |
| Umístění objektu |
okraj obce |
| Vlastnictví |
osobní |
| Sklep |
ano |
| Balkón |
ano |
| Plocha balkónu |
7,02 m² |
| Výtah |
ano |
| Rok výstavby |
2022 |
| Datum nastěhování |
1.10.2024 |
| Voda |
dálkový vodovod |
| Odpad |
veřejná kanalizace |
| Možnost parkování |
ano |
| Třída en. náročnosti |
B |
K nastěhování dle dohody s předešlým nájemcem, ideálně od
1.10.2024
RYCHLÁ VIDEO-PROHLÍDKA https://www.instagram.com/…CqNlAMotGY4/?…
Uprostřed Brdských lesů, mezi Příbramí, Berounem a Dobříší vám nabízíme k pronájmu novotou vonící cihlový byt 2+kk (49,6 m²) s balkonem (7,02 m²) a zděnou sklepní kójí. Byt se nachází na ulici Zborovská v městysi Jince, Středočeský kraj, ve 2. nadzemním podlaží (1.patro) v novostavbě bytového domu s výtahem. Místo je klidné, osídlené jen rezidenty, s téměř nulovým provozem aut. Byt je volný začátkem října 2024.
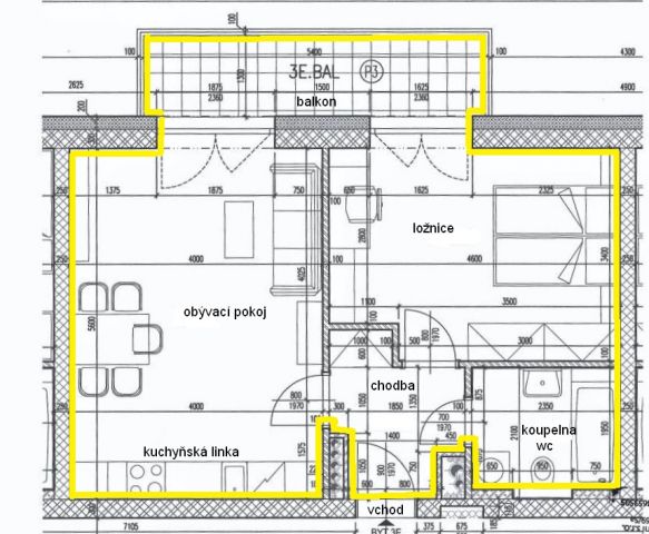
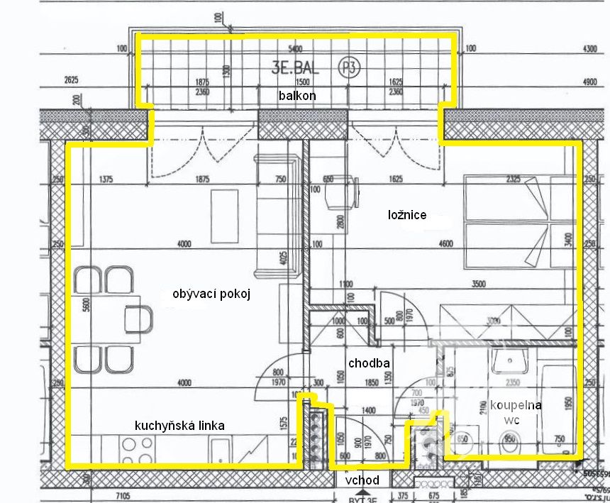
Dispozice bytu
Byt včetně balkonu je orientován na východ s úžasným výhledem na brdské kopce a přírodu. Místnosti jsou neprůchozí a samostatné. Obývací pokoj s kuchyňským koutem nabízí dostatek prostoru na obývací část i jídelní stůl. Velkoryse řešená koupelna je spojená s toaletou. Balkon je přístupný z obou místností.
Vybavení bytu
Kuchyňská linka ORESI se spotřebiči ( lednice s mrazákem, myčka, digestoř s odvětráním do komína, horkovzdušná trouba a mikrovlnka). Vstupní protipožární bezpečnostní dveře. Podlahy pokryty plovoucí podlahou EGGER 7 mm v dekoru světlého dubu. Dlažba a obklady RAKO řady Extra. Vytápění a ohřev vody zajišťuje centrální plynová kotelna v přízemí domu. Samostatný měřič tepla. V koupelně vana, topný plynový žebřík a přípojka na pračku. Okna plastová šesti-komorová trojskla. Vnitřní parapety plastové, venkovní lakovaný pozink. Datové a televizní přípojky v každé obytné místnosti.
Dům
Energeticky nenáročný dům spadá do energetické třídy B-velmi
úsporná a zaručuje tak nízké náklady na vytápění.
Byt je součástí developerského projektu Výhledy Brdy-Jince, kolaudovaný
září 2022. Samostatně stojící dům s výtahem a bezbariérovým
přístupem je postavený v mírném svahu. Přízemí je technické se
sklepními kójemi a společnými prostorami pro kočárky a kola, které je
možné využívat. Společné chodby jsou prostorné a prosvětlené okny.
Výměry v m²
04,46 m² předsíň
22,40 m² obývací pokoj s kuchyňským koutem
14,98 m² ložnice
04,73 m² koupelna s WC
46,57 m² užitná plocha bytu bez příček ) 49,6 m² s příčkami)
07,02 m² balkon
Plánek ve fotogalerii.
Dostupnost a parkování
Parkovat lze před domem na veřejném parkovišti pro rezidenty zdarma při
rychlém 5minutovém vyřízení parkovací karty v obci.
Městys Jince se cca 2300 obyvateli leží cca 11 km severně od Příbrami,
ve chráněné krajinné oblasti.
Brdy s hustou sítí turistických tras a cyklostezek s mnoha zajímavými
místy jako vrchol Plešivec, Svatá Hora u Příbrami, hrady Zvíkov a Orlík.
Jincemi protéká malá říčka Litavka.
Jince nabízejí kompletní služby (MŠ, ZŠ, pošta, restaurace, pivovar,
sokolovna, sportoviště, přírodní koupaliště-biotop, čerpací
stanice,atd.)
Autobusová zastávka vzdálena cca 5 min. chůze, vlaková cca 15 min,
zkratkou Přímé vlakové spojení či s přestupem do hlavního města Prahy
cca do 1,15 hod. jízdy. Dobrá dopravní dostupnost směrem na dálnice D5 a
D4.Dojezd autem na metro B Zličín cca 35 minut.
Domácí mazlíčci dle dohody. Hledáme nájemce, který bude byt udržovat, jako by byl jeho vlastní.



























































