Král praktičnosti a úložných prostor, promyšlený do každého zákoutí
Chudenická, Hostivař, Praha 15 pronajato 4+kk
| Cena | na vyžádání pronajato |
| Info k ceně | včetně právního servisu |
| Adresa | Chudenická Hostivař, Praha 15 |
| ID nabídky | groo1448 |
| Budova |
panelová |
| Stav objektu |
po rekonstrukci |
| Plocha užitná |
69,3 byt + 2,17 sklep + 6,86 lodžie. Celkem 78,33 m² |
| Plocha podlahová |
69,3 m² |
| Vybavení |
částečně |
| Umístění objektu |
sídliště |
| Vlastnictví |
osobní |
| Sklep |
ano |
| Plocha sklepu |
2,17 m² |
| Lodžie |
ano |
| Plocha lodžie |
6,86 m² |
| Podlaží |
4. |
| Počet podlaží budovy |
7 |
| Výtah |
ano |
| Datum nastěhování |
ihned |
| Topení |
ústřední dálkové |
| Možnost parkování |
ano |
| Míst k parkování |
kdekoli u domu |
| Třída en. náročnosti |
C |
Do tohoto bytu se při důmyslné rekonstrukci vešlo úplně všechno! Pozorně čtěte :) Byt je vhodný max. pro 3–4 osoby.
Byt 4+kk po rekonstrukci s lodžií a sklepem, který vás překvapí svou praktičností, rozhodně zaujme i rozvržením dispozic, kde byl využit každičký centimetr. Čistá plocha bytu činí bez mála 70 m², ale s ohromujícím pocitem, že to prostě musí být víc! Vše na adrese Chudenická, Praha 15 Hostivař na klidném sídlišti v pestré vzrostlé zeleni a kousek od vyhlášené Hostivařské přehrady.
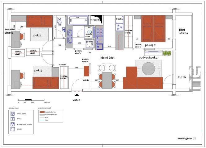
Poloha bytu
Byt o čisté podlahové ploše 69,3 se nachází se ve 4. NP (3.patro)
7 podlažního domu s výtahem.
Součástí pronájmu je lodžie 6,86 m², sklepní kóje 2,17 m². Celková
užitná plocha 78,33 m².
V kolárně je možné si pronajmout 2 háky za měsíční poplatek
10 Kč/ks.
Orientace bytu
Dva velmi světlé a téměř identické zrcadlové pokoje jsou orientovány na sever, ložnice a obývací pokoj s lodžií na jih. Místo je velmi klidné, s pohybem aut jen těch místních.
Vybavení bytu
Byt prošel nákladnou a velmi vydařenou rekonstrukcí s chytrým
použitím tří posuvných dveří.
Chodba: integrovaný botník ve skříni, věšáková stěna, velkoplošné
zrcadlo, osvětlení pro noční pohyb.
Koupelna: posuvné dveře, 2 umyvadla, vana, sprchový kout, prostor na pračku
a sušičku 60×60 s umístěním nad sebe.
Kuchyňský kout: plynová varná deska, pečicí trouba a mikrovlnná trouba,
vestavěná lednice s mrazákem, digestoř do komína, myčka (vše
Gorenje).
WC: úložný prostor nad WC. Umyvadlo s úložnou skříňkou – praktické
pro návštěvy.
Obývací pokoj: posuvné dveře, poličky – možnost odstranění, husí krk
na schování kabelů k TV a elektronice.
Ložnice: posuvné dveře, vestavěná skříň, poličky k postelím –
možnost odstranění.
Pokoje: vestavěné skříně běžné hloubky.
Technické vybavení bytu
Všechny vestavěné skříně a kuchyňská linka vyrobeny na míru od
jednoho truhláře. Přízemní osvětlení pro noční pohyb, dálkové
ústřední vytápění, vinylové bezprahové podlahy dekor dub a dlažba na
větraném WC a taktéž větrané koupelně. Vnitřní klasické žaluzie,
včetně sítí proti hmyzu v každé místnosti. Internet rozveden do každé
místnosti, v obývacím pokoji dokonce na dvou místech – možnost
optického kabelu. Na balkoně instalovány konzoly na prádelní šňůry.
Dle dohody s nájemcem mohou být ponechány/odstraněny poličky v obývacím
pokoji a ložnici (viz foto) v rámci vymalování pronajímatelem. Taktéž
dřevěná nástěnná dětská herna.
Byt je čistý, uklizený. Bude perfektně připravený pro nového
nájemníka.
Technické vybavení dům:
Kompletně revitalizovaný a opečovávaný (vnitřní prostory, výtah, střecha, zateplená fasáda). Vše nové, pěkné a čisté.
Sídlištní čtvrť
Panelové domy na tichém sídlišti. Dětská hřiště v hojném počtu. Dvě minuty od domu na Náměstí přátelství lze nakoupit v nově rekonstruovaném Albertu či posedět na zahrádce restaurace a vychutnat si příjemnou až komunitní pohodu, která v místě rozhodně panuje.
Parkování, občanská vybavenost
Kapacitně dostačující bez-zónové parkování zdarma před domem. Lokalita je výborně občansky vybavena (mateřská škola, základní škola). Čtyři min. od domu se nachází supermarket Albert. Lokalita je doslova obklíčena zelení a vodními plochami. Na metro Opatov (6 minut busem), Černý Most, Vysočanská, Kobylisy, atd… vás odveze bus 181,182,177 a noční autobusy.
Uvolnění bytu
K dispozici ihned dle dohody. Vítáni jsou i balkonoví kuřáci. Domácí mazlíčci po předešlé dohodě. Byt je určen k dlouhodobému pronájmu těm, kteří milují a nadšeně pečují o krásné prostředí i doma.
Bonus
Nedaleká Hostivařská přehrada byla vytvořena přehrazením Botiče,
uprostřed lesoparku za účelem rekreace a rybaření. Její plocha činí
43,8 ha a největší hloubka činí 12 m. Má klasickou a nudistickou část.
Je to přírodní koupaliště s největší vodní plochou v Praze.
Pro letošní sezónu 22 vám na přehradě pohlídají děti každou sobotu a
neděli.





























































