Úžasný světlý byt, ve kterém můžete tančit
Jeseniova, Žižkov, Praha 3 prodáno
| Cena | na vyžádání prodáno |
| Info k ceně | včetně právního servisu |
| Adresa | Jeseniova Žižkov, Praha 3 |
| ID nabídky | groo1431 |
| Budova |
skeletová |
| Stav objektu |
velmi dobrý |
| Plocha užitná |
125,3 m² |
| Vybavení |
ne |
| Umístění objektu |
klidná část obce |
| Vlastnictví |
osobní |
| Garáž |
ano |
| Počet parkovacích míst |
1 |
| Podlaží |
6. |
| Počet podlaží budovy |
7 |
| Výtah |
ano |
| Rok výstavby |
1999 |
| Datum nastěhování |
ihned |
| Topení |
lokální plynové |
| Voda |
dálkový vodovod |
| Odpad |
veřejná kanalizace |
| Možnost parkování |
ano |
| Míst k parkování |
1 |
| Třída en. náročnosti |
C |
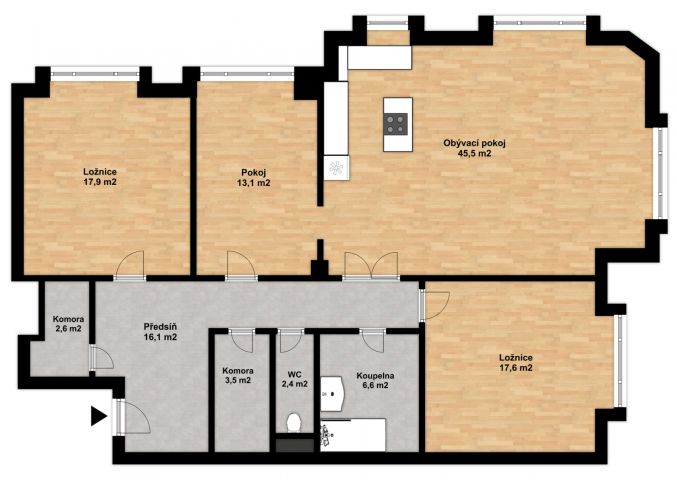
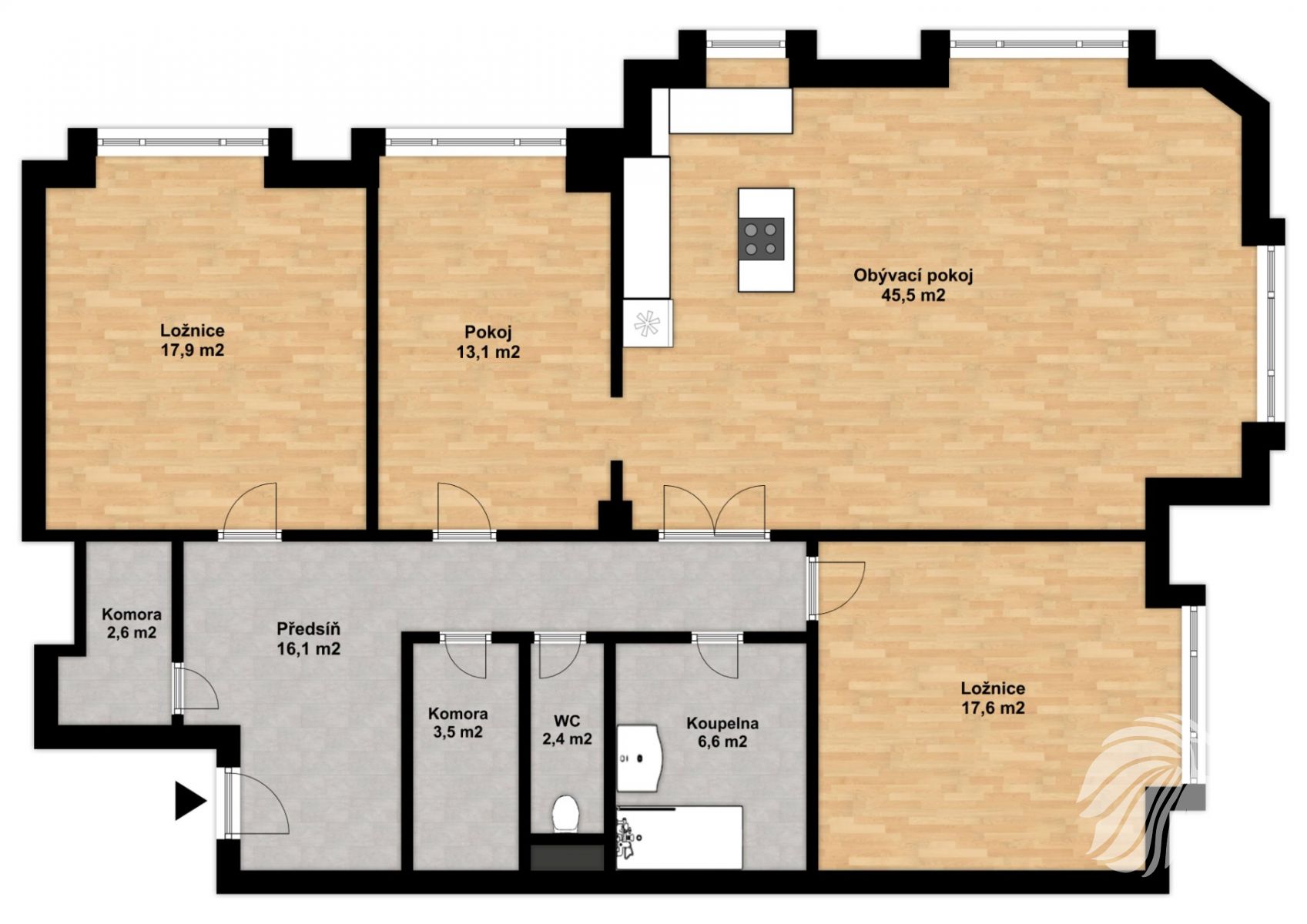
Okázalá svou velikostí a dispozicí, ale také umístěním mezi oblíbenou Parukářkou a Vítkovem, to je bytová jednotka 4+kk (3+1), v jejímž atypickém obývacím pokoji o ploše 45,5 m² s vikýřovými okny si doslova můžete zatančit. Celková plocha bytu činí 125,3 m², jejíž součástí jsou nejen dvě komory v bytě, ale také parkovací stání v domě a podíly na společných částech domu a pozemků.
Orientace a lokalita
Byt se nachází v horní části Jeseniovy ulice, Praha 3 Žižkov,
v 6. nadzemním podlaží (5.patro) bytového domu s orientací na SV.
Ložnice směřována na S, rohový obývák na SV, ostatní místnosti směr V.
Nad jednotkou se nachází další poslední podlaží, taktéž s byty.
7 podlažní dům o 24 bytových jednotkách a dalších nebytových
prostorách stojí v obklopení zeleně: úžasného Vrchu sv. Kříže –
Parukářky a Vítkova s dominující sochou Jana Žižky.
Atmosféru v bytě vytváří jeho světlost díky rohové orientaci, dech
beroucí pohled shora na Kostel sv. Anny, prostorový výhled do Jeseniovy a
bočních ulic, atypické prvky v obýváku – vikýřová okna, šikmé
stěny, ale také velké vzdušné místnosti.
Dispozice bytu
Bytová jednotka je svou rozlohou druhá největší v domě. Tvoří ji
vstupní chodba se samostatnými vstupy do všech místností: technické komory
s kotlem, prádelny, koupelny, WC a 4 místností. Byt je veden jako 3+1,
avšak rozloha obývacího pokoje umožňuje vybudování kuchyňského koutu se
získáním dalšího pokoje na místě původní kuchyně.
Pro všímavé, atypická okna korespondují s tvarem oken kostela sv. Anny.
Byt nabízí nadstandardní výšku stropů cca 276 cm a v případě
rekonstrukce nabízí velkou variabilitu změny dispozic, jak u obývacího
pokoje s kuchyní, tak u sociálního zařízení a komory.
Stav bytu
Byt je v původním stavu, po vybudování kuchyňské linky ihned obyvatelný, ale doslova vybízí k rekonstrukci, která nabídne velkolepé moderní bydlení pro rodinu milující prostor. Pro představu dodáme 3D vizualizaci obývacího pokoje s kuchyní. Dodáme do fotogalerie.
Technické vybavení
Vytápění je zajištěno etážovým závěsným plynovým kotlem s průtokovým ohřevem teplé vody s rozvody v mědi. Radiátory s termo hlavicemi, termostat je umístěn v obývacím pokoji. Přípojka na pračku je vyvedena v prádelně (místnost vedle WC původně evidovaná jako fotokomora). Bezpečnostní protipožární dveře.
Vlastní parkování
Garážové stání v domě. Jednotka umístěná v 1. PP tvoří prostory pro garážové stání. Užívací právo o podílu 1/25, činí 9,9m² (4,50 × 2,20 m) a leží pár metrů od vnitřního vstupu k výtahům. Pohodlně vjedete přes el. vrata s dálkovým ovládáním ze západní části domu z ulice Ostromečská. Prostory s 25 parkovacími místy jsou opatřeny kamerovým systémem.
Info o domě
Dům byl kolaudován v r.1999. Konstrukce domu tvoří železobeton se zděnými příčkami a měděnou střechou. Zateplená fasáda s ušlechtilou omítkou. Společné prostory vč. garáží jsou opatřeny kamerovým systémem. K bytu vás vyveze osobní či nákladní výtah. Možnost využití společných prostor, např. kočárkárna, kolárna. U domu se nacházejí podzemní kontejnery na tříděný odpad.
Lokalita
Oblíbenější horní část Žižkova, vyhledávaná díky specifické atmosféře čtvrti, všudypřítomné zeleni, s úžasnými panoramatickými výhledy na celou Prahu a např. dětským hřištěm na Parukářce, vysoce rozvinuté infrastruktuře, venkovním koupalištěm na Pražačce a velkému množství nákupních příležitostí, restaurací a hospůdek. U domu se nachází BUS zastávka „Ostromečská“ s linkami 133,136,207,908,909. Tram. zastávka „Biskupcova“ 5,8,9,11,14,19,25. Dojezdová vzdálenost 12 minut na Florenc metro C a B. Sportovní vyžití a nákupní možnosti jsou v lokalitě nepřeberné. Vinohradská nemocnice je vzdálena 11 min.
Bonus
Žižkov lidově „Žižkaperk“ byl původně nazýván jako Královské Vinohrady. Na Žižkov byl přejmenován v r. 1877 a v roce 1881 byl povýšen na město. Roku 1922 byl začleněn do nově vzniklé Velké Prahy. Proto taky tzv. „město ve městě“.
Financování
Lze financovat hypotečním úvěrem. Financování zařídíme.



















































