Prostorný byt 1+kk v novostavbě s vlastním park. stáním, u metra C Pankrác
Hanusova, Michle, Praha 4 pronajato
| Cena | na vyžádání pronajato |
| Info k ceně | včetně právního servisu |
| Adresa | Hanusova Michle, Praha 4 |
| ID nabídky | groo1423 |
| Budova |
cihlová |
| Stav objektu |
velmi dobrý |
| Plocha užitná |
37,96 m² |
| Plocha podlahová |
39,52 m² |
| Vybavení |
ne |
| Umístění objektu |
klidná část obce |
| Vlastnictví |
osobní |
| Garáž |
ano |
| Počet parkovacích míst |
1 |
| Sklep |
ano |
| Plocha sklepu |
1,56 m² |
| Podlaží |
2. |
| Výtah |
ano |
| Rok výstavby |
2012 |
| Datum nastěhování |
ihned |
| Telekomunikace |
internet |
| Topení |
ústřední dálkové |
| Možnost parkování |
ano |
| Třída en. náročnosti |
C |
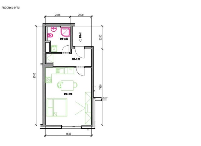
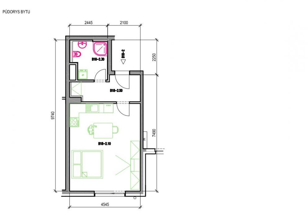
Nabízíme pronájem částečně zařízeného bytu 1+kk s garážovým stáním. Byt o výměře 37,96 m² na ulici Hanusova, Praha 4 Michle v projektu VIVUS. 5 minut od metra „C“ Pankrác. Nachází se v 1.patře (2. NP) novostavby z roku 2012 s výtahem. Součástí pronájmu je i sklepní kóje v suterénu domu o velikosti 1,56 m².
Orientace bytu
Okna bytu jsou dostatečně vysoko, orientována na JV s pohledem do vnitrobloku s prostorným dětským hřištěm s bezhlučným a bezpečným tartanovým povrchem a vjezdem/výjezdem do garáží. Okolní zástavba zajišťuje dokonalé odhlučnění od okolí. Vrata dálkově ovládaná.
Stav bytu
Byt je ve výborném stavu, bez poškození, čistý, udržovaný. Pro nového nájemce bude připravený.
Vybavení bytu
Byt je vybaven kuchyňskou linkou, digestoří vyvedenou do komína, el. troubou a dvou-plotýnkovou el. varnou deskou. Pevný, skleněný, velký a elegantní jídelní stůl s mléčným sklem, 1 židle, prostorná lednice s mrazákem. Skleněný skládací PC stolek. Úložné prostory tvoří volně stojící komínová skříň v pokoji a 2 šatní skříně na chodbě bytu. Přípojka na pračku vyvedena do koupelny, součástí je pračka zn. BEKO – starší dosluhující typ. Podlahy – plovoucí lamino v perfektním stavu a pěkném dekoru, chodba a koupelna – dlažba.
Vodo-topo
Vytápění a dodávka teplé vody zajištěna dálkově se samostatnými měřiči na společné chodbě. Elektřina bude převedena na nájemce.
Požadavky na nájemníka
Hledáme nekuřácký pár či jednotlivce. Nabídka je určena k dlouhodobému bydlení.
Dopravní dostupnost okolí a infrastruktura
5 minut chůze BUS a metro „C“ Pankrác.
Nákupní možnosti a služby
u metra Pankrác – nákupní centrum Arkády Pankrác, potraviny, pošta, drogerie, lékárna, restaurace, zábava atd. s dopravním BUS uzlem.
Parkování
Vlastní parkovací stání v suterénu domu v areálu společného garážového stání. Viz foto.
Nastěhování a prohlídky
Dle dohody se stávajícím nájemcem k cca 1.11.2020. Prohlídky možné ihned PENB nebyl dodán, uvádíme třídu G – pracujeme na dodání.
Mikrovlnná trouba a stojací lampa na videu nejsou součástí.



































