3 prodejny, 5 výloh, 2 kanceláře a zázemí. Vše k pronájmu u zastávky Ruská ve Vršovicích
Charkovská, Vršovice, Praha 10 pronajato
| Cena | na vyžádání pronajato |
| Info k ceně | včetně právního servisu |
| Adresa | Charkovská Vršovice, Praha 10 |
| ID nabídky | groo1396 |
| Budova |
cihlová |
| Stav objektu |
dobrý |
| Plocha podlahová |
94,78 m² |
| Vybavení |
částečně |
| Typ domu |
patrový |
| Poloha objektu |
rohový |
| Umístění objektu |
rušná část obce |
| Vlastnictví |
osobní |
| Sklep |
ano |
| Plocha sklepu |
90 m² |
| Datum nastěhování |
ihned |
| Telekomunikace |
internet |
| Topení |
lokální plynové |
| Doprava |
silnice MHD |
| Voda |
dálkový vodovod |
| Plyn |
plynovod |
| Komunikace |
asfaltová |
| Třída en. náročnosti |
G |
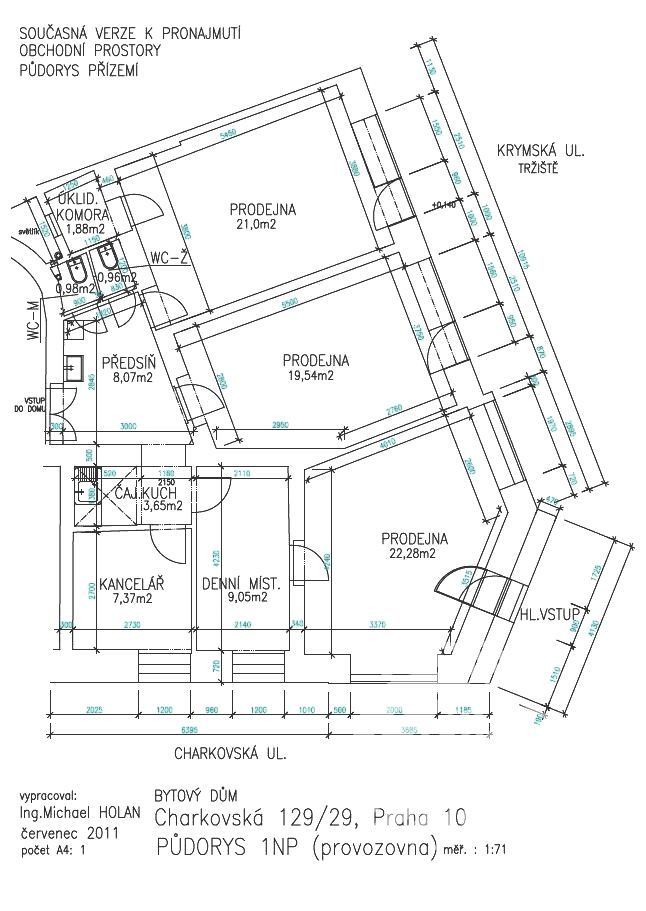
Na vyžádání poskytneme plánek s dobře čitelnými kótami v PDF, vč. fotografií interiéru.
Nabízíme nebytové prostory o celkové výměře 94,78 m² s pěti výlohami, zajímavé svou variabilitou a dobrou viditelností. Umístěné v přízemí činžovního domu po renovaci fasády na ulici Charkovská, Praha 10 Vršovice. Prostory jsou velmi dobře viditelné z ulic Kodaňská, Krymská a Charkovská a výborně dostupné z tram. zastávky „Ruská“.
Dispozice
Nebytové prostory tvoří 3 prodejny ( 21 m², 19,54 m², 22,28 m²) každá s vlastním vstupem z ulice a výlohou. Prodejny mají společné zázemí, které tvoří 2 další místnosti s oknem ( 7,37 m² a 9,05 m²), kuchyňský kout 3,65 m², předsíň 8,07m² a 2 toalety (0,98 m² a 0,96 m²). V pravé prodejně (při pohledu z ulice) je komora 1,88m², nyní sloužící jako sklad. Čtvrtý vstup do prostor je umožněn přes činžovní dům dveřmi opatřenými přidanými mřížemi. Prostory jsou orientovány na SV, V, JV.
Možnost zvětšení o přibližně 90 m² skladových prostor
Prostory lze do budoucna zvětšit znovu zprůchodněním schodiště v komoře do suterénních prostor o velikosti přibližně 90 m², které půdorysně téměř odpovídají prodejním prostorám. Suterén bez oken lze po základních stavebních úpravách a dle vzájemné dohody do budoucna využívat jako skladové prostory. Jsou přirozeně odvětrávány do úrovně chodníku. Současná výše nájemného nezahrnuje suterénní prostory.
Technické vybavení
Podlahy jsou pokryty dlažbou, plovoucí podlahou a PVC, všechny krytiny
jsou položeny na nedávno rekonstruovanou podlahu s novou betonovou stěrkou.
Vytápění vlastním plynovým kotlem Vaillant umístěným v předsíni
společně s umyvadlem. Vlastní měřiče elektřiny,plynu a vody.
Zařízení, vybavení nábytkem stávající nájemce v prostorách
ponechává dvě bytelná zbudovaná dřevěná patra, díky vysokým
stropům – naskýtá se spousta úložného prostoru, dále regály a police.
Lednice na míru bude ponechána po dohodě se stávajícím nájemcem, stejně
jako zabezpečovací zařízení s kamerou a venkovní reklamní štít.
Další reklamní panely na dům či jiné štíty lze po dohodě umístit.
Využít lze rozvaděč (tzv. rack) na umístění PC serveru nájemce. PC
sítě jsou rozvedeny do všech místností. Okenní výlohy jsou opatřeny
vertikálními žaluziemi. Dvě výlohy v pravé prodejně a dvě klasická
okna chráněna mřížemi.
Požadavky na nájemníka a logistika
Prostory nabízejí velkou variabilitu. Zásobování – nakládka a vykládka bez potíží. Ideální pro výdejnu, e-shop, služby, účetní či právní firmu, apod. Nevhodné pro potraviny a gastronomický provoz. Hledáme nájemce k dlouhodobému pronájmu. Dopravní dostupnost ideální tramvají č. 22, zastávka Ruská.
Uvolnění a úprava prostor
Uvolnění od 5/2019, 6/2019 či na dohodě. Prostory jsou nyní pomalu vyklízeny, připravovány pro nového nájemce. Možné úpravy a přizpůsobení požadavkům novému nájemci je možné ve spolupráci s vlastníkem nemovitosti.
Náklady
Platba nájemného měsíčně, požadována jistota ve výši jednoho holého nájmu. Platba záloh na vodu hrazena společně s nájemným. Elektřina a plyn – přepis na nájemce.
Fotodokumentace
Fotografie interiéru poskytneme na vyžádání. V současné době probíhá stěhování, nelze fotit. PENB nebyl dodán, proto uvádíme energetickou třídu G.






