Kancelářské prostory na horní části Žižkova (u Ohrady)
Domažlická, Žižkov, Praha 3
| Cena | 220 Kč za m²/měsíc |
| Info k ceně | Cenové rozmezí 220 Kč - 270 Kč/m2 + zálohy na služby. Podrobný rozpis níže v inzerátu. Neplatíte provizi RK. |
| Adresa | Domažlická Žižkov, Praha 3 |
| ID nabídky | groo1327 |
| Budova |
cihlová |
| Stav objektu |
velmi dobrý |
| Vybavení |
ne |
| Stavba |
budova, hala |
| Typ domu |
patrový |
| Umístění objektu |
klidná část obce |
| Vlastnictví |
osobní |
| Podlaží |
3. a 5. |
| Počet podlaží budovy |
6 |
| Výtah |
ano |
| Datum nastěhování |
ihned |
| Třída en. náročnosti |
G |
NEPLATÍTE PROVIZI RK. Prohlídky možné kdykoli. Volné kanceláře vyznačené v pláncích ve fotogalerii červeně.
Kanceláře v oblíbené lokalitě horní části Žižkova, v rohové kancelářské 6 podlažní budově na ulici Domažlická, Praha 3 Žižkov(roh ulic Jeseniova a Domažlická). Klidné, zato velmi dobře dostupné místo. Busem stanice Černínova – 4 minuty na Florenc metro "C a "B, tramvají stanice Biskupcova. Výhled do parku Parukářka. Možnosti příjemného posezení a obědů v mnoha restauracích a kavárnách v okolí. Relaxace po práci v parku Parukářka a na kopci Vítkov. Fotografie: vybrané ukázky z celého domu.
Kauce
2 x nájem plus 2 x záloha na služby bez DPH (neplátci DPH jsou u nájmu od DPH osvobozeni, u záloh na služby se ale DPH účtuje)
Elektřina
nájemci přefakturována čtvrtletně na základě skutečné spotřeby dle odečtu z podružných elektroměrů.
Parkování
pro nájemce je zajištěno v sousední budově. Jinak modrá zóna.
Technické parametry domu:
– modernizace domu v r. 2007
- recepce 24 hod, kamerový systém, alarm napojený na PCO
- osobní výtah o nosnosti 6 osob je zaveden do všech podlaží
- vlastní telefonní ústředna, která umožňuje i využití ADSL/VDSL
připojení
- klimatizace je osazena v 6.NP, celkem čtyřmi vnitřními jednotkami
– vytápění a ohřev TUV je řešen centrálně, plynovou kotelnou
umístěnou v 6. NP
- datové a telefonní sítě jsou nově rozvedeny po celém objektu. Servrovna
je umístěna ve 4. NP
- vzduchotechnika, se strojovnou umístěnou v 1. PP, je rozvedena po celém
1. PP a v 1. NP v prostorách kavárny
- internet – možnost napojení na hlavního dodavatele pro budovu spol. T
Mobile se synchronní linkou 20Mb nebo možnost využití vlastního dodavatele,
nebo UPC/Vodafone
- IT zásuvky jsou rozvedeny po celém patře v rámci standardu
- počet linek není omezen. Telefonní zásuvky jsou rozvedeny po celém patře
v rámci standardu
- možnost využití úklidu kanceláří hlavním dodavatelem pro dům
- průkaz energetické náročnosti(PENB)nebyl dodán, proto uvádíme
třídu G
Volné kancelářské prostory:
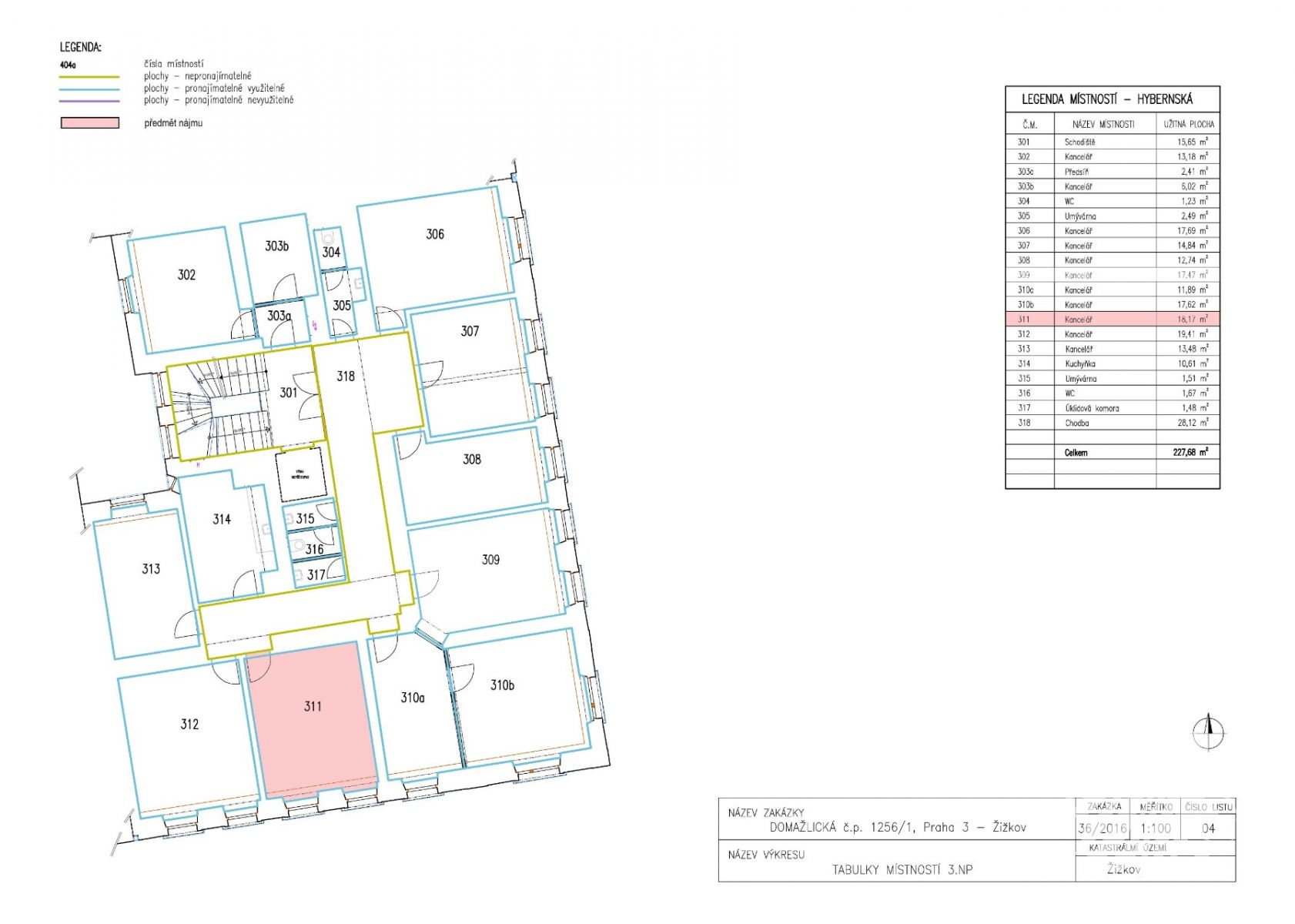
2.patro k pronájmu volné od 1.3.2021
(3.NP, kanceláře č. 311) – 1× kancelář
Výměra: 23,36 m² (kancelář 18,17 m² + společné prostory 5,19 m²)
Nájemné: 240 Kč/m² + DPH
Zálohy na služby: 50 Kč/m²/měsíc + DPH
Měsíčně nájem 5.606,4 Kč + DPH a záloha služby 1.168 Kč + DPH
3.patro k pronájmu volné od 1.3.2021
(4.NP, kanceláře č. 403,404 a+b) – 1× kancelář + 1× sklad
Výměra: 27,60 m² (kancelář 21,35 m² + společné prostory 6,25 m²)
Nájemné: 220 Kč/m² + DPH
Zálohy na služby: 50 Kč/m²/měsíc + DPH
Měsíčně nájem 6.072 Kč + DPH a záloha služby 1.380 Kč + DPH
3.patro k pronájmu volné ihned
(4.NP, kanceláře č. 419) – 1× kancelář
Výměra: 15,35 m² (kancelář 11,87 m² + společné prostory 3,48 m²)
Nájemné: 270 Kč/m² + DPH
Zálohy na služby: 50 Kč/m²/měsíc + DPH
Měsíčně nájem 4.144 Kč + DPH a záloha služby 767,5 Kč + DPH
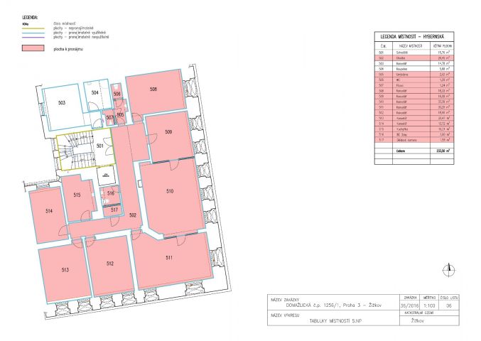
4.patro k pronájmu volné od 1.3.2021
(5.NP – celé patro) – 7× kancelář, kuchyňka, 2 x sociální
zázemí
Výměra: 197,28 m²
Nájemné: 220 Kč/m² + DPH
Zálohy na služby: 50 Kč/m²/měsíc + DPH
Měsíčně nájem 43.401,6 Kč + DPH a záloha služby 9.864 Kč + DPH























