Dokonalá stavební parcela u Staré Boleslavi, se zahradou, projektem na RD azajištěním stavebního povolení
Borek, Borek stavební parcela zahrada
| Cena | 4 600 000 Kč |
| Info k ceně | včetně projektu a vyjednání stavebního povolení |
| Adresa | Borek Borek |
| ID nabídky | groo1501 |
| Stavba |
rekreační chata |
| Umístění objektu |
klidná část obce |
| Vlastnictví |
osobní |
| Zástavba |
obytná |
| Plocha zastavěná |
56 m² |
| Plocha pozemku |
327 m² |
| Telekomunikace |
internet |
| Elektřina |
230V 380V |
| Voda |
místní zdroj |
| Odpad |
veřejná kanalizace |
| Komunikace |
asfaltová |
Lze odkoupit i bez projektu.
Na místě chaty může stát právě Váš dům a jeden takový jsme vám
navrhli.
Stavební parcela se zahradou, projektem na RD a zajištěním stavebního povolení – Borek u Staré Boleslavi. Navštivte místo obklopené borovicovými lesy a jezery, které ve vás zanechá ten nejlepší dojem.
Nabízíme k prodeji stavební pozemek o výměře 327 m² v klidné lokalitě obce Borek u Staré Boleslavi. Součástí je dřevěná rekreační chata, hotový projekt na rodinný dům a probíhající vyřízení stavebního povolení, které zajišťuje prodávající.
Charakteristika pozemku
Celková výměra: 327 m²
Zastavěná plocha: 56 m²-rekreační chata s evidenčním číslem
Zahrada: 271 m²
Tvar pozemku: nepravidelný čtyřúhelník se stranami cca 17,27 m, 22,43 m,
16,76 m a 16,73 m
Pozemek není v záplavové oblasti
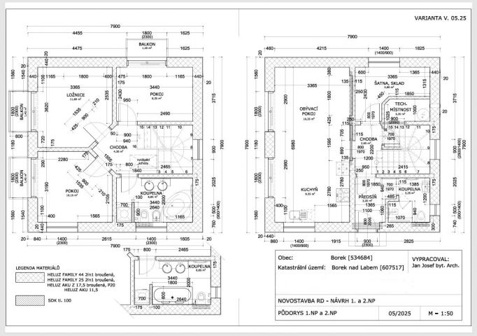
Projekt a stavební připravenost
Hotový projekt rodinného domu s navrženou zastavěnou plochou 7,9 ×
7,9 m
Obytná plocha bude činit cca 102 m²
Stavební povolení ve fázi vyřizování – zajišťuje prodávající (je
zahrnuto v ceně). Případné změny v projektu hradí kupující
samostatně
Možnost demolice chaty – v případě zájmu kupujícího zajistí
prodávající
Nabízíme také zajištění kvalitní výstavby domu „na klíč“ dle
projektu
Inženýrské sítě a vybavení
Elektřina na pozemku
Nová tlaková kanalizace, napojená na centrální ČOV s dostatečnou
kapacitou
Vlastní studna – zásobování vodou je v této lokalitě běžně řešeno
tímto způsobem i u ostatních domů
Možnost připojení na optickou síť O₂ (rychlý internet,
digitální TV)
Okolní pozemky a přístup
Přístupová komunikace je ve vlastnictví Středočeského kraje
Pozemky před stavební parcelou se vzrostlou zelení jsou ve vlastnictví obce
Borek a klasifikovány jako les a jiná plocha
Na těchto pozemcích jsou věcná břemena pro zřizování a provozování
inženýrských sítí – Výstavba trvalých objektů zde z těchto důvodů
zpravidla není povolena, což zaručuje trvalý klid a výhled do zeleně.
Územní regulativa (zóna „BV“ – bydlení v rodinných domech)
Výstavba RD s max. 1 nadzemním podlažím a podkrovím (případně
1 podzemním podlažím)
Střecha: sedlová, valbová nebo polovalbová; plochá střecha možná pouze
po schválení obcí
Zastavěnost: max. 25 %, u pozemků do 800 m² až 30 %
Min. 60 % pozemku musí zůstat nezpevněno (zeleň)
Lokalita
Tiché a zelené prostředí s výbornou dostupností:
Praha – Černý Most: 27 min
Mladá Boleslav: 22 min
Brandýs nad Labem: 8 min Stará Boleslav: 4 min
V obci Borek se nachází smíšený obchod s potravinami (Borek 61) se
základním sortimentem. Kompletní občanskou vybavenost – supermarkety,
restaurace, kavárny, školy, školky, zdravotní střediska a služby –
najdete v nedalekém Brandýse nad Labem. Lokalita těží z blízkosti řeky
Labe a nabízí ideální prostředí jak pro klidné bydlení, tak pro aktivní
životní styl.
V okolí se nachází oblíbená Labská stezka s kvalitním povrchem, vhodná
pro cyklistiku, běh i in-line bruslení, a také přírodní jezera (Lhota,
Konětopy, Probošťák), která zvou ke koupání, rybaření i relaxaci.
V regionu se pravidelně konají také komunitní a přírodovědné akce, což
dotváří příjemnou atmosféru této lokality.
Tato parcela vám nabízí jedinečnou kombinaci soukromí, přírody a
pohodlné dostupnosti do města.
Fotografie chaty zevnitř zašleme na vyžádání.
Půdorys 1. a 2. NP zašleme ve kvalitním rozlišení v PDF na
vyžádání.
Pozemek můžete navštívit kdykoli, lze si jej prohlédnout ze dvou stran.
Boční přístupová cesta vpravo od pozemku je veřejná (obecní).














































